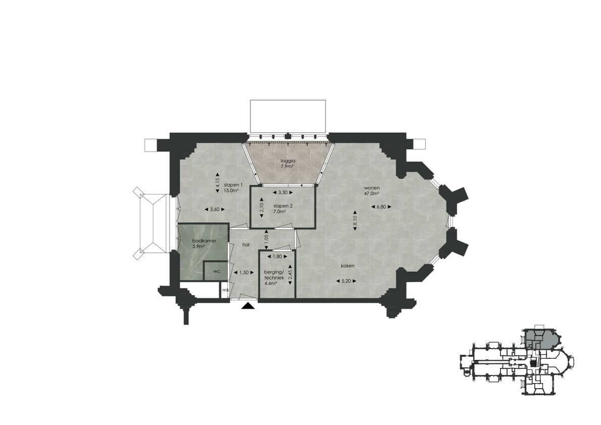
Appartement 7

Kenmerken

  • Verkocht

  • Appartement op de eerste verdieping
  • Te bereiken met trap en lift
  • Sfeervolle ruime woonkamer van 47 m2
  • Veel authentieke metselwerk details
  • 2 slaapkamers
  • Glas in lood in ouderslaapkamer en badkamer
  • Loggia met schuifpuien
  • Gasloze woning

Aanvullende informatie