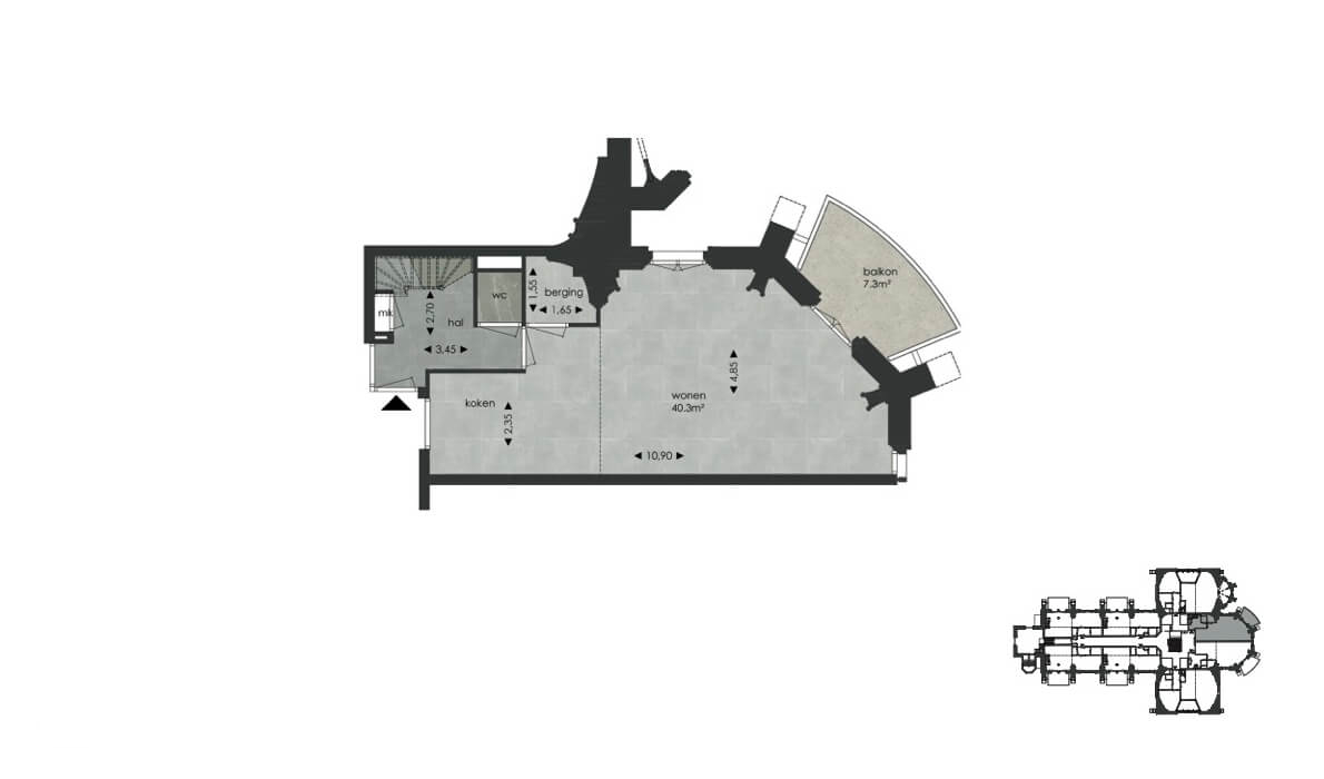
Appartement 15

Kenmerken

  • Verkocht

  • Appartement op de tweede en derde verdieping
  • Te bereiken met trap en lift
  • Sfeervolle woonkamer met monumentale gewelven als plafond
  • Slaapkamer aan de vide onder monumentale gewelven
  • Balkon
  • Gasloze woning
  • Warmtepomp met vloerverwarming

Aanvullende informatie