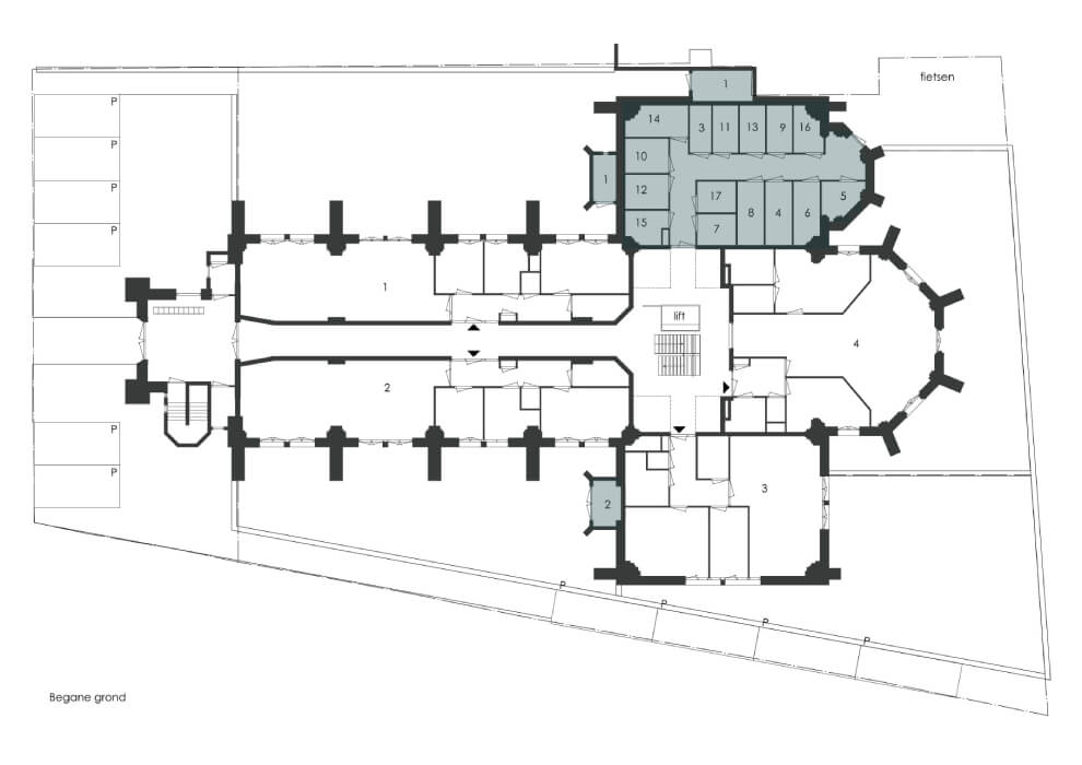
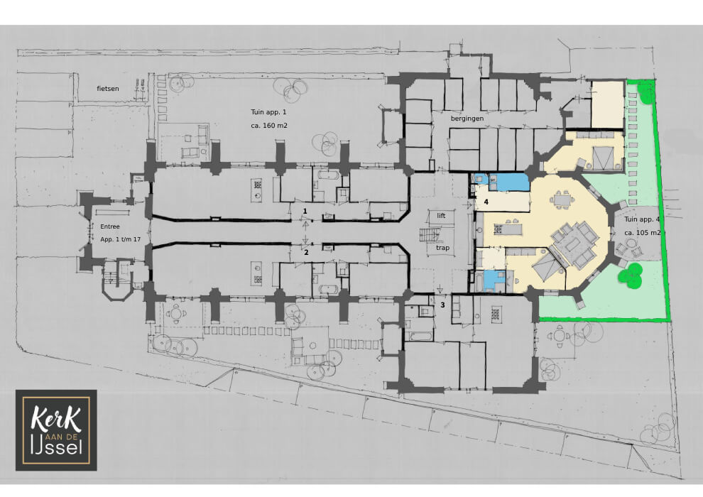
Appartement 4

Kenmerken

Let op: De sacristie zal behouden blijven en wordt een onderdeel van dit appartement.

  • Verkocht

  • Appartement op de begane grond
  • Sfeervolle woonkamer van 66 m2
  • Veel authentieke metselwerk details
  • 2 royale slaapkamers
  • Tuin van ca. 105 m2
  • Gasloze woning
  • Warmtepomp met vloerverwarming

Aanvullende informatie