Appartement 12

Kenmerken

  • Verkocht

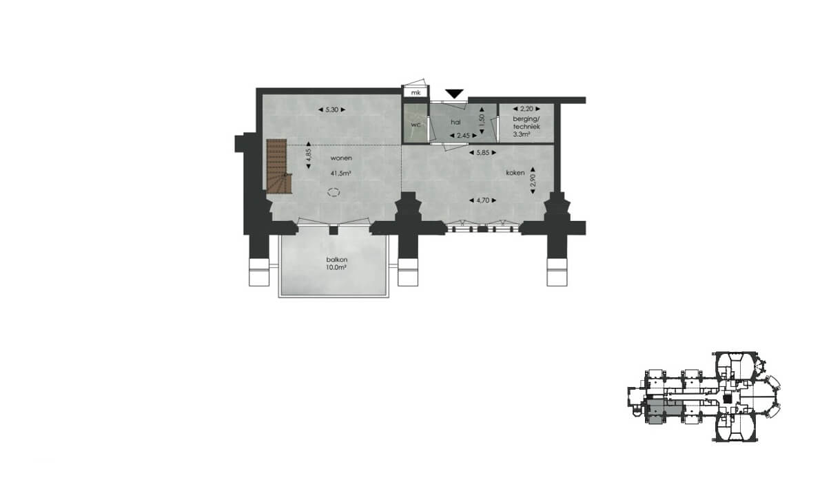
  • Appartement op de tweede en derde verdieping
  • Te bereiken met trap en lift
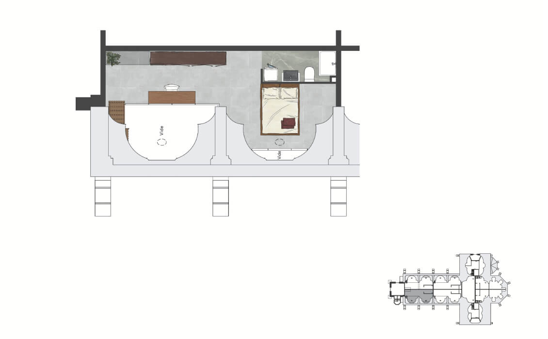
  • Woonkamer met monumentale gewelven als plafond
  • Insteek met ruime werkplek aan de vide
  • Slaapkamer onder monumentale gewelven
  • Ruim balkon
  • Gasloze woning
  • Warmtepomp met vloerverwarming

Aanvullende informatie