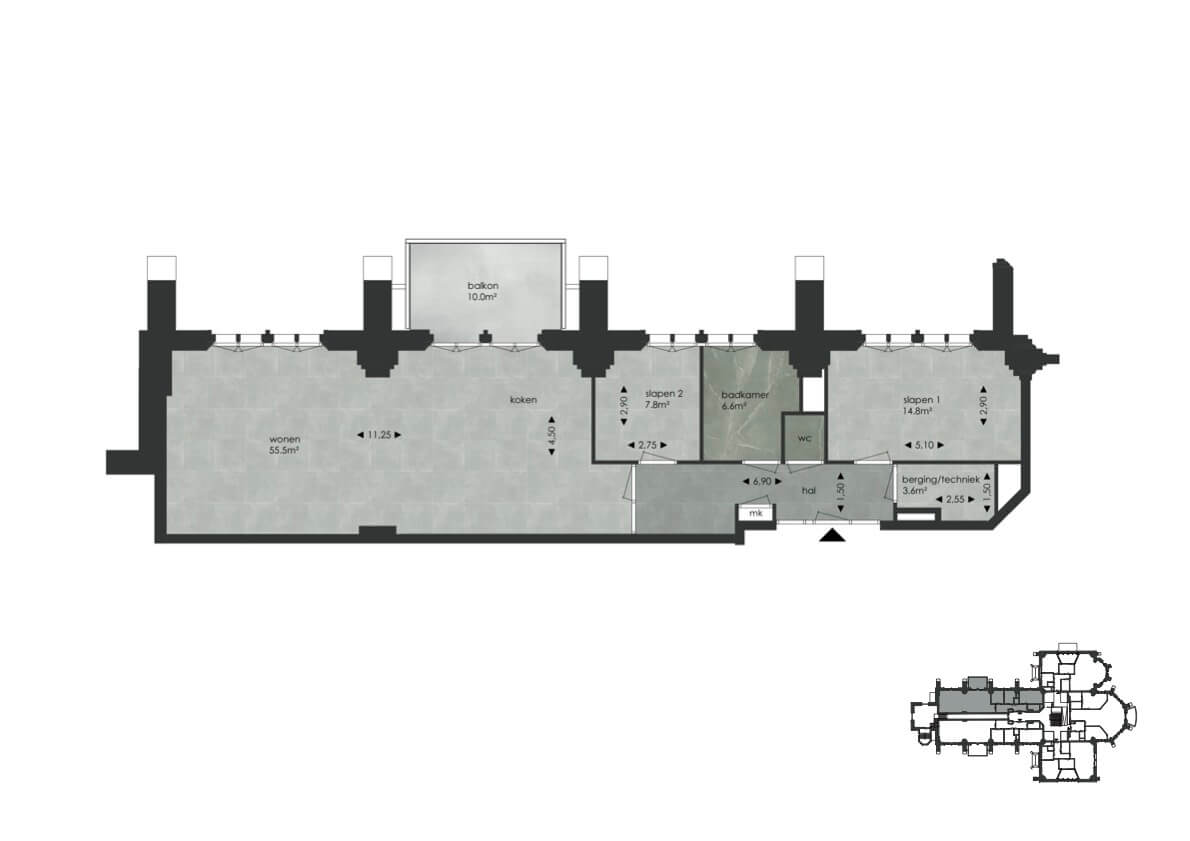
Appartement 5

Kenmerken

  • Beschikbaar

  • Appartement op de eerste verdieping
  • Te bereiken met trap en lift
  • Ruime woonkamer van ruim 55 m2
  • Veel authentieke metselwerk details
  • 2 royale slaapkamers
  • Ruime badkamer
  • Ruim balkon
  • Gasloze woning
  • Warmtepomp met vloerverwarming
  • € 445.000,- v.o.n. (incl. stelpost voor sanitair en tegels van € 7000,-)

Aanvullende informatie